Cornerstone
Cornerview
Townhomes

Cornerview Townhomes is a 40-unit development featuring spacious 1700+ sq. ft. layouts, each thoughtfully designed for comfort and modern living in Cornerstone. This community offered two functional floorplan options, including a middle-kitchen layout and an L-shaped kitchen, along with the convenience of a double-car garage in every home. The project has been extremely well- received, with only the last unit now available for purchase. Cornerview continues to represent the quality, design, and value that define our work.
You'll Love Living Here:
Cornerview Townhomes is a 40-unit development featuring spacious 1700+ sq. ft. layouts, each thoughtfully designed for comfort and modern living in Cornerstone. Only the last unit now available for purchase.
Floor models :
- Ranch Plan B
Sold Out!!
Get More detailsRanch Plan B




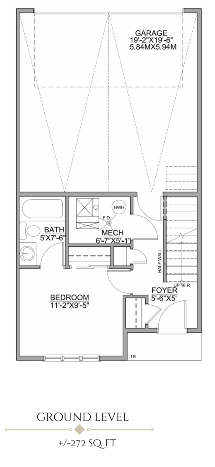
Experience spacious living with the Ranch Plan B—a thoughtfully designed 1,800 sq. ft. home featuring 4 bedrooms, including 2 master suites, and 3.5 bathrooms. This two-storey layout offers modern functionality and comfortable family living.
Enjoy an open-concept main floor perfect for daily living and entertaining, two master suites for flexible family arrangements, and the convenience of a single-car garage. The Ranch Plan B combines generous space with thoughtful design for effortless everyday living.
Sold Out!!
CATEGORY | TownHouse |
SQUARE FOOTAGE | 1,800 SQFT |
BEDROOMS | 4 (including 2 master) |
BATHROOMS | 3.5 |
PARKING | 2 Car Garage |
Location: 416 Corner Meadows Square NE, Calgary
Click on the pin to redirect to google map for exact location.
Some property
Images you'll love











